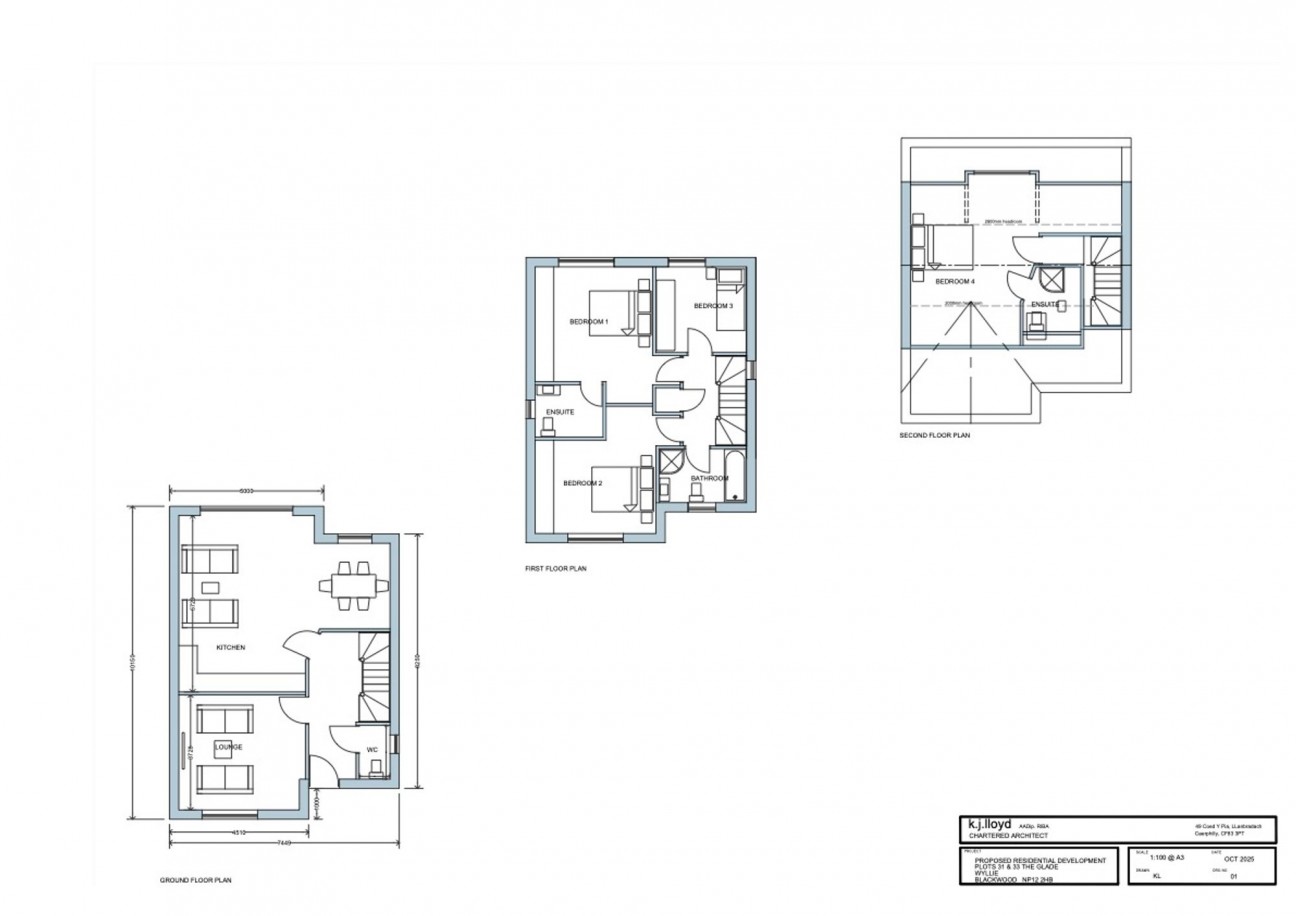
4 Bed Land (Residential) For Sale

The Glade, Blackwood, NP12
£129,000

Description

  • Building plot in popular Glade development

  • Elevated position

  • Stunning valley views

  • Sought-after modern development

  • Ideal for self-build

  • Peaceful yet well-connected location

  • Scenic walks nearby

  • Commuting distance to Cardiff and Newport

  • Opportunity to create a bespoke home

An exciting opportunity to acquire a building plot within the highly sought-after Glade development, offering the perfect setting to create your dream home.

The plot is positioned in an elevated location, enjoying incredible valley views that provide a stunning backdrop for future development.

Set within a welcoming and well-regarded community, the location offers an excellent balance of peaceful surroundings and accessibility, with scenic walks directly from the doorstep.

With convenient commuting links to Cardiff and Newport, this is a rare chance to secure a plot in a desirable modern development, combining luxury potential with a charming valley setting.

Tenure: Freehold

Council Tax Band:

Location

To discuss this property call our friendly team

01495 243473

or Book a viewing
SAVE TO SHORTLIST REMOVE FROM SHORTLIST

Market your property
with Flying Keys

Book a market appraisal for your property today. Our virtual options are still available if you prefer.

PROPERTY SEARCH

Show Sold STC
Show Let Agreed