4 Bed Land (Residential) For Sale

The Glade, Blackwood, NP12
£129,000

Description

  • Prime building plot

  • Located within The Glade development

  • Elevated with panoramic valley views

  • Excellent self-build opportunity

  • Strong community feel

  • Surrounded by countryside walks

  • Peaceful setting

  • Good transport links to Cardiff and Newport

  • Ideal for a luxury bespoke home

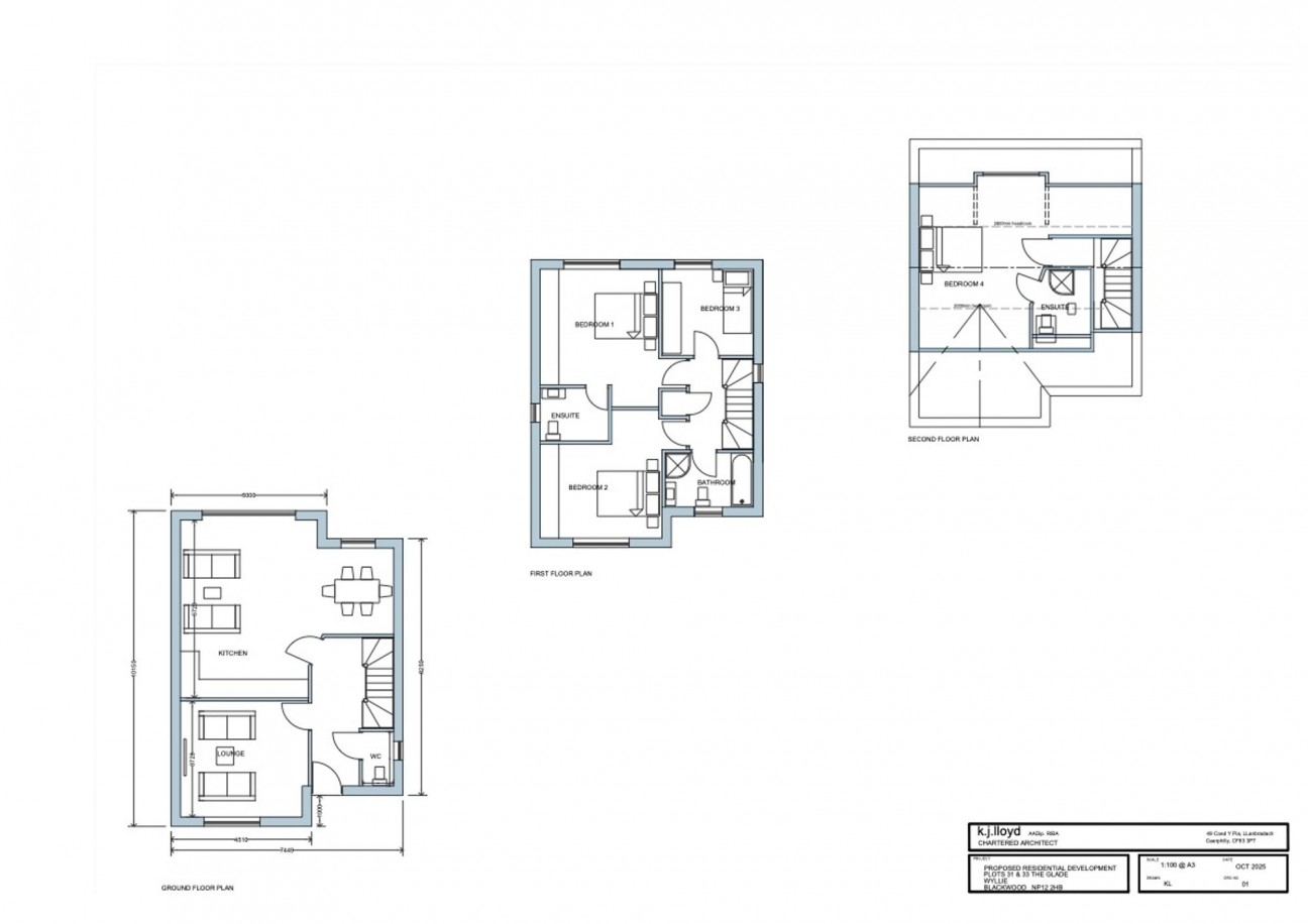
This is a fantastic opportunity to secure a prime building plot within the desirable Glade development, offering the chance to design and build a bespoke home in a beautiful valley setting.

The plot occupies an elevated position, maximising the breathtaking valley views and enhancing the sense of privacy and exclusivity.

Located within a thriving community, the area is known for its peaceful atmosphere and access to surrounding countryside, with a variety of walking routes right on your doorstep.

Perfectly positioned for commuters, the development provides easy access to both Cardiff and Newport, making it an ideal blend of countryside living and modern convenience.

A rare and exciting prospect for those looking to create a luxury home tailored to their own vision.

Tenure: Freehold

Council Tax Band:

Location

To discuss this property call our friendly team

01495 243473

or Book a viewing
SAVE TO SHORTLIST REMOVE FROM SHORTLIST

Market your property
with Flying Keys

Book a market appraisal for your property today. Our virtual options are still available if you prefer.

PROPERTY SEARCH

Show Sold STC
Show Let Agreed